繁
/
简
/
ENG
|
管理員登入
Toggle navigation
首頁
公司簡介
筍盤推介
一手新盤
最新成交
屋苑走勢
圖則資料
友和廣告
新聞中心
置業指南
›
買賣流程
›
即時估價
›
按揭計算
›
按揭成數表
›
學校網
網上放盤
分行指南
聯絡我們
繁
/
简
/
ENG
|
管理員登入
圖則資料
位置 :
圖則資料
>
雅閣花園
> 雅閣花園
雅閣花園 BLOCK PLAN (THE ARCADIA)
雅閣花園 BLK 1 (G/F) (THE ARCADIA)
雅閣花園 BLK 1 (1-2/F) (THE ARCADIA)
雅閣花園 BLK 1 (3-11/F) (THE ARCADIA)
雅閣花園 BLK 1 (12/F) (THE ARCADIA)
雅閣花園 BLK 1 (PENTHOUSE PLAN) (THE ARCADIA)
雅閣花園 BLK 2 (1-2/F) (THE ARCADIA)
雅閣花園 BLK 2 (3-11/F) (THE ARCADIA)
雅閣花園 BLK 2 (12/F) (THE ARCADIA)
雅閣花園 BLK 2 (PENTHOUSE PLAN) (THE ARCADIA)
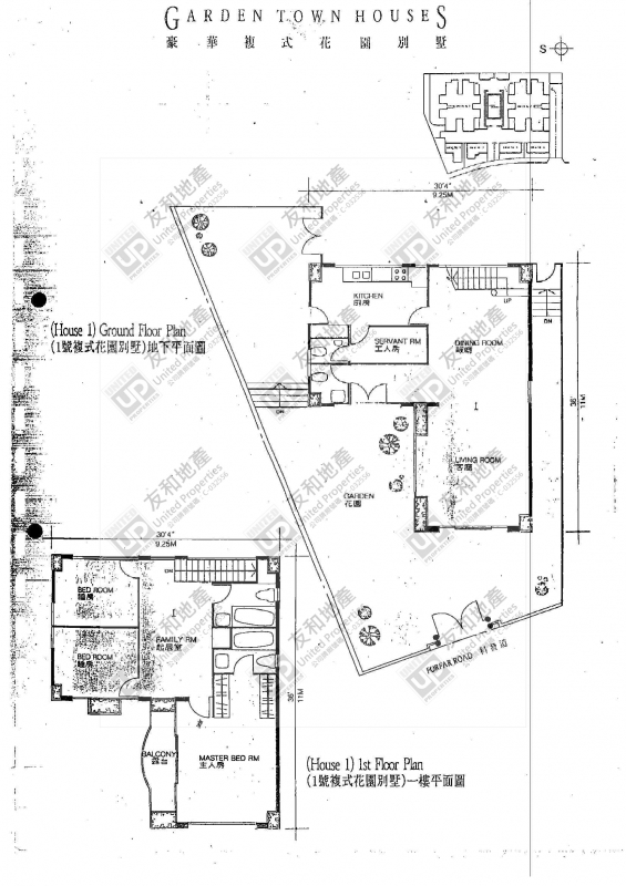
雅閣花園 GARDEN TOWN HOUSES 1 (THE ARCADIA)
雅閣花園 GARDEN TOWN HOUSES 2 (THE ARCADIA)
雅閣花園 GARDEN TOWN HOUSES 3 (THE ARCADIA)
雅閣花園 CAR PARK (THE ARCADIA)
置頂